Leave a Message

Thank you for your message. We will be in touch with you shortly.

Explore Our Properties

Property Description

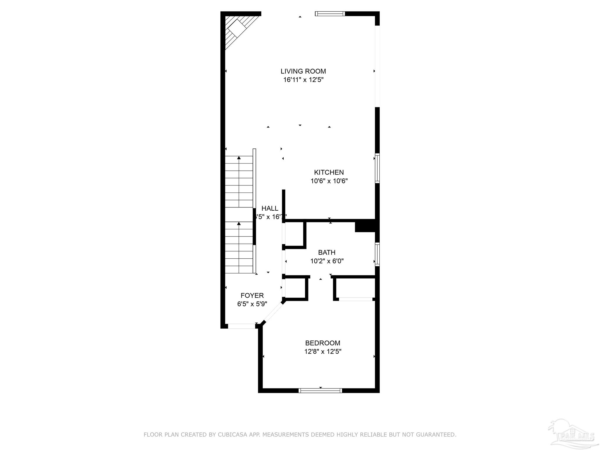
Peaceful Beachfront Getaway with Stunning Views Embrace coastal living in this charming townhome, offering breathtaking views of the Gulf, sound, and lake. This end-unit townhome provides a serene and comfortable escape, complete with everything you need. The main level features inviting living spaces, a fully equipped kitchen, a spacious covered balcony, a cozy bedroom, and a full bath. Upstairs, you'll find the master bedroom, an en-suite bath, and a second large balcony perfect for relaxing. On the ground level, enjoy the convenience of an oversized garage with opener and interior stairwell, offering ample space to park two cars and store beach gear. The unit has never been rented and is sold fully furnished, including kitchenware, linens, and accessories--truly move-in ready and ideal for a second home or vacation rental. This turnkey property offers a fantastic opportunity. The small, eight-unit complex includes shared access to a community pool and ample parking, in addition to the private garage. With two balconies, a private garage, spacious interiors, low HOA fees, and a prime location, this beach retreat is a must-see. Don't miss out on your chance to own a piece of paradise.

Overview

Property Status
Sold
Lot Size
1,306.8 Sq.Ft.
MLS ID
660401
Property Type
Townhouse
Year Built
1998

Features & Amenities

Total Area
1,214 Sq.Ft.
Neighborhood
Gulf Breeze Proper
Architecture Styles
Traditional
View Description
Gulf, Water
Stories
2
Garage Spaces
2.0
Water Source
Public
Pool
In Ground
Roof
Composition
Lot Features
Interior Lot
Parking
2 Car Garage
Heat Type
Central
Air Conditioning
Central Air, Ceiling Fan(s)
Appliances
Electric Water Heater
Sewer
Public Sewer
Substructure
Pillar/Post/Pier
Security Features
Smoke Detector(s)
Elementary School
A.K. Suter
Middle School
WORKMAN/GULF BREEZE MIDDLE SCHOO
High School
Pensacola/Gulf Breeze High Schoo
Sales Price
$430,000
HOA
$3,000/yr
Zoning
Res Single

Downloads

1550 Via Deluna Dr # H

Schedule a Tour

We would love to help you see this beautiful home! As a full-service brokerage, we can help you tour. Please submit an offer, and answer questions about the buying process.

Thank you

for your interest in 1550 Via Deluna Dr # H, Pensacola Beach, FL 32561

1550 Via Deluna Dr # H
Navigate
Gulf Breeze Proper

Explore Gulf Breeze Proper

Gulf Breeze is located on the end of the Fairpoint peninsula and is the “front porch” to Pensacola Beach. This peninsula city is separated to the north by a three mile bridge across Pensacola Bay from the City of Pensacola and to the south by the Bob Sikes Bridge over Santa Rosa Sound to Pensacola Beach. On the east, landward up the peninsula to the east is the 1,329 acre Naval Live Oaks portion of the Gulf Islands National Seashore. As a result, residents enjoy a quiet residential community just a few minutes from the Gulf of Mexico and the City of Pensacola.

read more

I'm Interested In

1550 Via Deluna Dr # H

or
  • CallLarry Kuhn

    License #BK3254606

    (850) 384-9707
  • pretitle

    Featured Properties

    • 9 N Sunset Blvd Active Under Contract

      $3,400,000

      9 N Sunset Blvd, Gulf Breeze, FL 32561

      • 4 Beds
      • 4 Baths
      • 4,874 Sq.Ft.
    • 310 Ariola Dr For Sale

      $3,200,000

      310 Ariola Dr, Pensacola Beach, FL 32561

      • 4 Beds
      • 4 Baths
      • 3,500 Sq.Ft.
    • 92 Highpoint Dr For Sale

      $3,150,000

      92 Highpoint Dr, Gulf Breeze, FL 32561

      • 5 Beds
      • 5 Baths
      • 4,200 Sq.Ft.
    • 39 E Galvez Ct For Sale

      $2,375,000

      39 E Galvez Ct, Pensacola Beach, FL 32561

      • 5 Beds
      • 5 Baths
      • 3,700 Sq.Ft.
    • 1119 Soundview Trl Active Under Contract

      $1,790,000

      1119 Soundview Trl, Gulf Breeze, FL 32561

      • 4 Beds
      • 5 Baths
      • 2,537 Sq.Ft.
    • 2721 Bay St For Sale

      $1,585,000

      2721 Bay St, Gulf Breeze, FL 32563

      • 4 Beds
      • 4 Baths
      • 2,090 Sq.Ft.
    • 5275 Soundside Dr For Sale

      $799,000

      5275 Soundside Dr, Gulf Breeze, FL 32563

    • 6278 Jenks Dr Pending

      $679,900

      6278 Jenks Dr, Gulf Breeze, FL 32563

      • 5 Beds
      • 3 Baths
      • 3,076 Sq.Ft.
    • 506 Fairpoint Dr For Sale

      $672,000

      506 Fairpoint Dr, Gulf Breeze, FL 32561

      • 3 Beds
      • 2 Baths
      • 2,435 Sq.Ft.
    • 2363 Cloudberry Dr Pending

      $546,000

      2363 Cloudberry Dr, Gulf Breeze, FL 32563

      • 5 Beds
      • 3 Baths
      • 3,060 Sq.Ft.
    • 333 Valancia St Active Under Contract

      $469,000

      333 Valancia St, Gulf Breeze, FL 32561

    • 4023 Sandy Bluff Dr Active Under Contract

      $424,900

      4023 Sandy Bluff Dr, Gulf Breeze, FL 32563

      • 4 Beds
      • 4 Baths
      • 2,419 Sq.Ft.
    • 1940 Cambridge Park Dr Active Under Contract

      $359,000

      1940 Cambridge Park Dr, Gulf Breeze, FL 32563

      • 4 Beds
      • 2 Baths
      • 1,815 Sq.Ft.
    • 1310 Redwood Ln Active Under Contract

      $239,900

      1310 Redwood Ln, Gulf Breeze, FL 32563

      • 2 Beds
      • 2 Baths
      • 1,167 Sq.Ft.
    • 201 Pensacola Beach Rd # D24 Active Under Contract

      $235,000

      201 Pensacola Beach Rd # D24, Gulf Breeze, FL 32561

      • 2 Beds
      • 2 Baths
      • 1,009 Sq.Ft.
    • 3202 Redwood Ln # 109 For Sale

      $135,000

      3202 Redwood Ln # 109, Gulf Breeze, FL 32563

      • 2 Beds
      • 1 Bath
      • 635 Sq.Ft.
    • 000 Rutgers Rd For Sale

      $105,000

      000 Rutgers Rd, Gulf Breeze, FL 32563

    • 61 Baybridge Dr Active Under Contract

      $99,000

      61 Baybridge Dr, Gulf Breeze, FL 32561

    • 63 Baybridge Dr Active Under Contract

      $99,000

      63 Baybridge Dr, Gulf Breeze, FL 32561

    • 00 Rutgers Rd For Sale

      $65,000

      00 Rutgers Rd, Gulf Breeze, FL 32563

    • 405 Canterbury Ln For Lease

      $4,000/mo

      405 Canterbury Ln, Gulf Breeze, FL 32561

      • 3 Beds
      • 3 Baths
      • 2,629 Sq.Ft.
    View All Properties

    Follow Us On Instagram